Work
All
Architecture
Interior design
Product design
News
About
Apartamentual
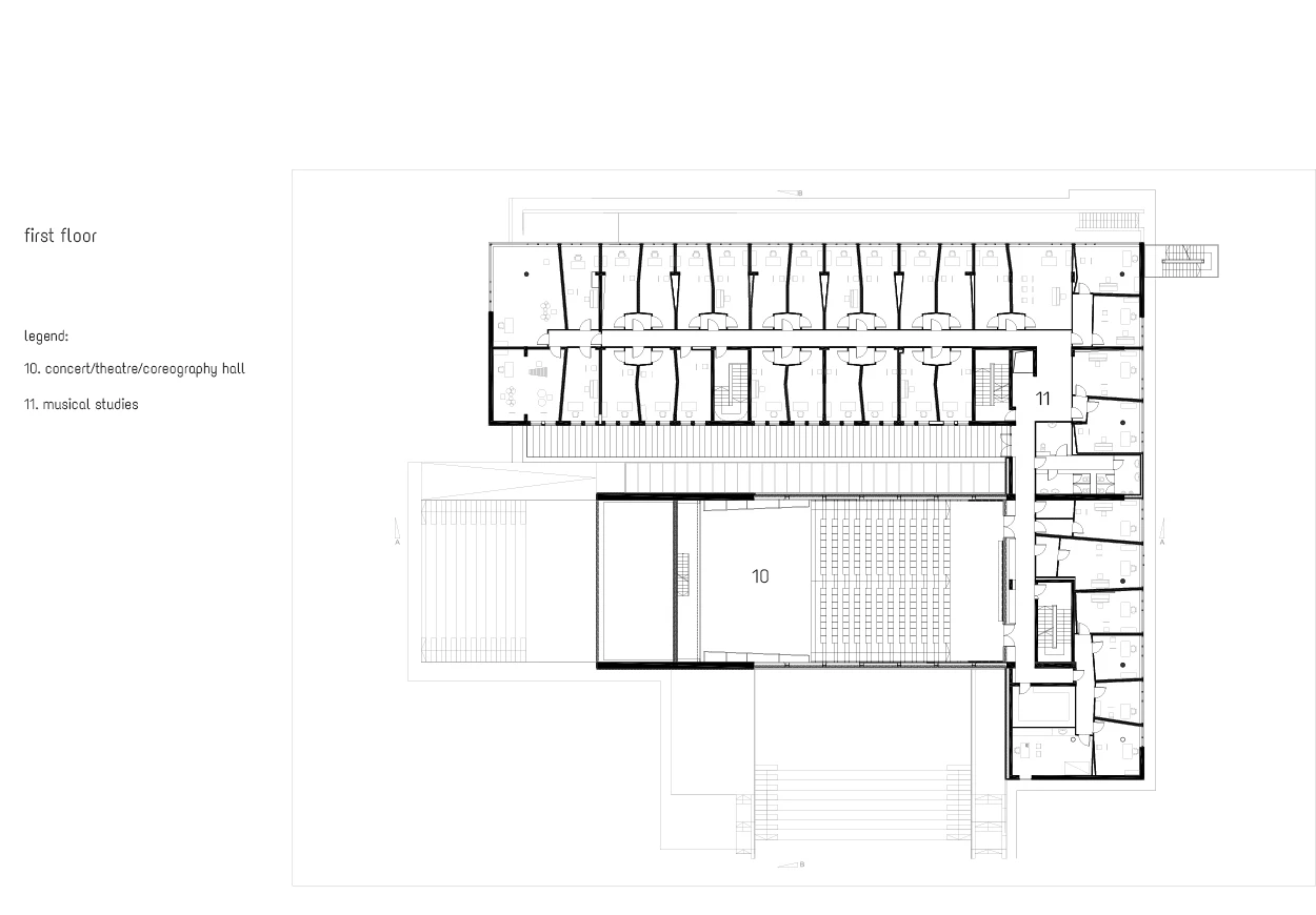
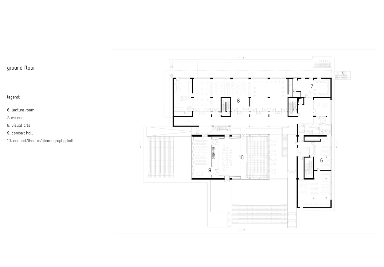
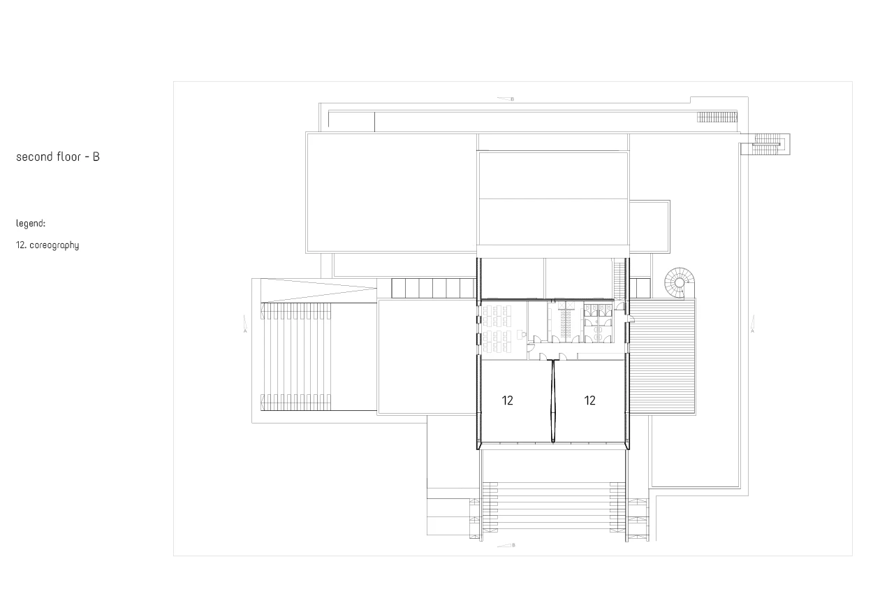
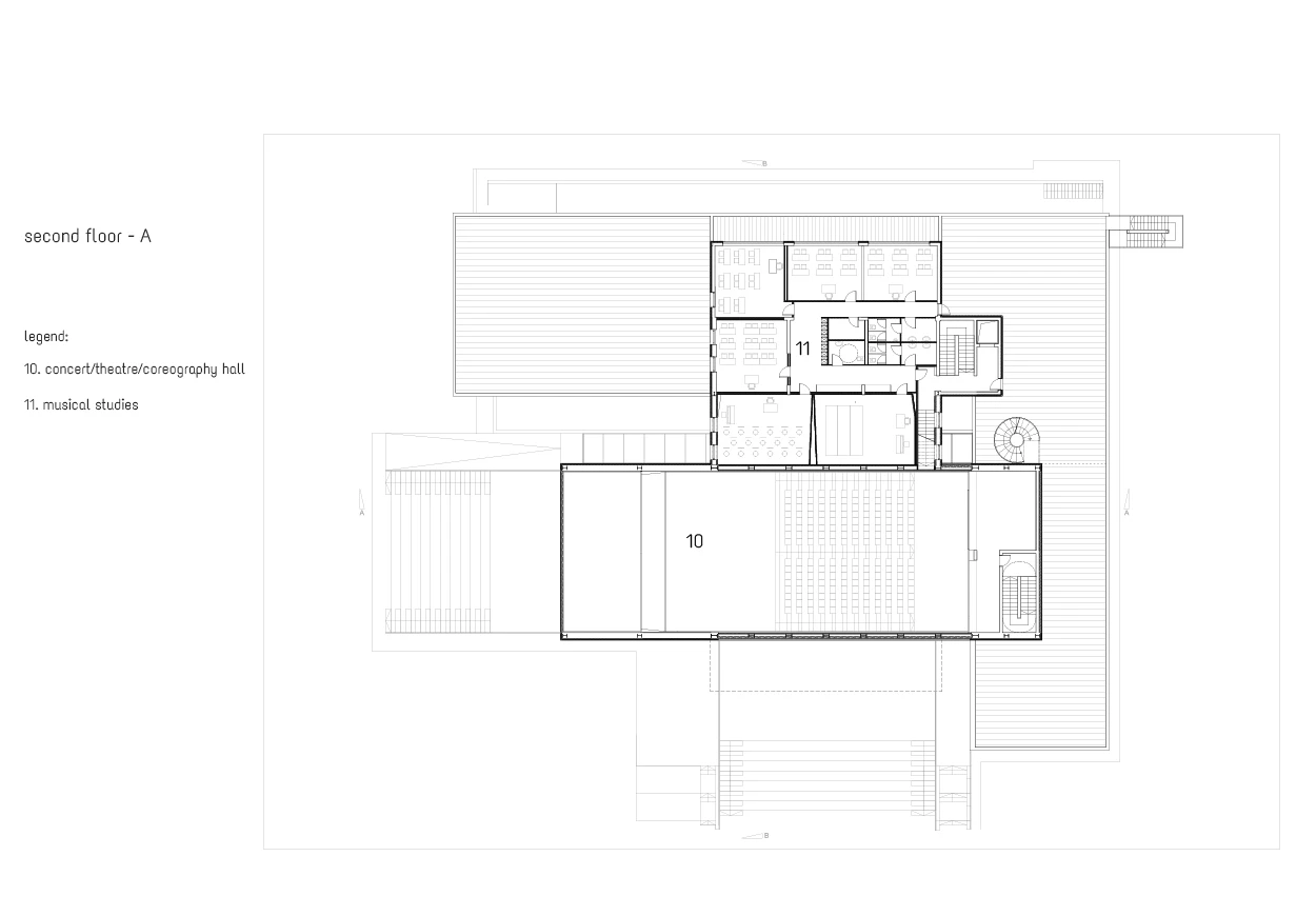
Școala de Muzică și Arte plastice nr. 5
Category:
Architecture
Year:
2009
Status:
Completed
Location:
București
Previous project
Next project